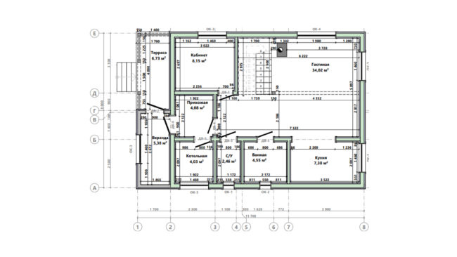
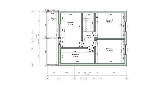
ДОМ 8*12
Стоимость дома от 2 320 000 руб
ОБЩАЯ ПЛОЩАДЬ 187 кв.м.
РАЗМЕР
ДОМА 11.70 x 8.00
ТИП ФУНДАМЕНТА СВАЙНЫЙ
ЭТАЖИ 2
СПАЛЬНИ 3
САНУЗЛЫ 1
Позвоните нам
ОБЩАЯ ПЛОЩАДЬ 187 кв.м.
РАЗМЕР
ДОМА 11.70 x 8.00
ТИП ФУНДАМЕНТА СВАЙНЫЙ
ЭТАЖИ 2
СПАЛЬНИ 3
САНУЗЛЫ 1