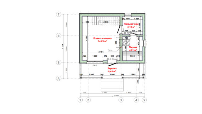
ДОМ 6*6
Стоимость дома от 819 000 руб
ПЛОЩАДЬ 63 кв.м.
РАЗМЕР ДОМА 6.00 x 6.00
ТИП ФУНДАМЕНТА СВАЙНЫЙ
ЭТАЖИ 2
СПАЛЬНИ 1
САНУЗЛЫ 0
Позвоните нам
ПЛОЩАДЬ 63 кв.м.
РАЗМЕР ДОМА 6.00 x 6.00
ТИП ФУНДАМЕНТА СВАЙНЫЙ
ЭТАЖИ 2
СПАЛЬНИ 1
САНУЗЛЫ 0