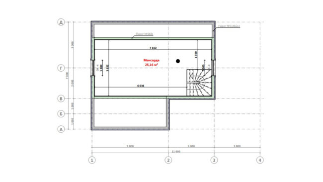
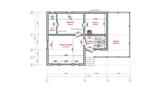
ДОМ 7*8
Стоимость дома от 1 285 000 руб
ОБЩАЯ ПЛОЩАДЬ 103 кв.м.
РАЗМЕР ДОМА 8.00 x 7.00
ТИП ФУНДАМЕНТА СВАЙНЫЙ
ЭТАЖИ 2
СПАЛЬНИ 0
САНУЗЛЫ 1
Позвоните нам
ОБЩАЯ ПЛОЩАДЬ 103 кв.м.
РАЗМЕР ДОМА 8.00 x 7.00
ТИП ФУНДАМЕНТА СВАЙНЫЙ
ЭТАЖИ 2
СПАЛЬНИ 0
САНУЗЛЫ 1